
Q641F不銹鋼氣動球閥是球閥配上氣動執行器。氣動執行器的執行速度相對較快,并且不需要工人親力親為,在很大程度上節約了人力資源以及時間。本類閥門在管道中一般應當水平安裝。Q641F不銹鋼氣動球閥發展演變與工作原理 氣動球閥是由截止閥演變而來。它具有相同的旋轉90度提動作,不同的是旋塞體是球體,有圓形通孔或通道通過其軸線。球面和通道口的比例應該是這樣的,即當球旋轉90度時,在進、出口處應全部呈現球面,從而截斷流動。
Q641F不銹鋼氣動球閥發展演變與工作原理氣動球閥是由截止閥演變而來。它具有相同的旋轉90度提動作,不同的是旋塞體是球體,有圓形通孔或通道通過其軸線。球面和通道口的比例應該是這樣的,即當球旋轉90度時,在進、出口處應全部呈現球面,從而截斷流動。

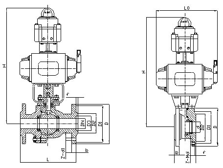
不銹鋼氣動球閥結構圖
Q641F不銹鋼氣動球閥只需要用氣旋轉90度的操作和很小的轉動力矩就能關閉嚴密。完全平等的閥體內腔為介質提供了阻力很小、直通的流道。通常認為球閥適宜直接做開閉使用,但近來的發展已將球閥設計成使它具有節流和控制流量之用。球閥的主要特點是本身結構緊湊,易于操作和維修,適用于水、溶劑、酸和天然氣等一般工作介質,而且還適用于工作條件惡劣的介質,如氧氣、過氧化氫、甲烷和乙烯等。球閥閥體可以是整體的,也可以是組合式的。
Q641不銹鋼氣動球閥的現實作用
Q641F不銹鋼氣動球閥的工作原理是靠旋轉閥戀來使閥門暢通或閉塞。氣動球閥開關輕便,體積小,可以做成很大口徑,密封可靠,結構 簡單,維修方便,密封面與球面常在閉合狀態,不易被介質沖蝕,在各行業得到廣泛的應用。
Q641F不銹鋼氣動球閥和旋塞閥是同屬一個類型的閥門,只有它的關閉件是個球體,球體繞閥體中心線作旋轉來達到開啟、關閉的一種閥門。

不銹鋼氣動球閥工作原理圖
Q641F不銹鋼氣動球閥在管路中主要用來做切斷速度快、分配和改變介質的流動方向。氣動球閥是近年來被廣泛采用的一種新型閥門,它具有以下優點:
1、流體阻力小,其阻力系數與同長度的管段相等。
2、結構簡單、體積小、重量輕。
3、緊密可靠,球閥的密封面材料廣泛使用塑料、密封性好,在真空系統中也已廣泛使用。
4、操作方便,開閉迅速,從全開到全關只要旋轉90°,便于遠距離的控制。
5、維修方便,氣動球閥結構簡單,密封圈一般都是活動的,拆卸更換都比較方便。
6、在全開或全閉時,球體和閥座的密封面與介質隔離,介質通過時,不會引起閥門密封面的侵蝕。
7、適用范圍廣,通徑從小到幾毫米,大到幾米,從高真空Zhi高壓力都可應用。
Q641F不銹鋼氣動球閥已廣泛應用于石油、化工、發電、造紙、原子能、航空、火箭等各部門,以及人們日常生活中。
相關產品: